12702 / 3113 Surfers Paradise Boulevard, Surfers Paradise
$895,000
Experience the difference at the Hilton
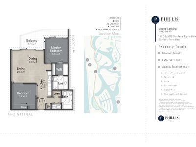
Situated in the heart of Surfers Paradise, this northeast-facing apartment offers fabulous views of the beach from the 27th floor. Encompassing everything a top-tier building has to offer, alongside a central location, this easy-living 2-bedroom apartment is right for you.
Stepping inside, straight away you notice the amazing position and views. With the main living and kitchen flowing directly onto the balcony, you notice that the whole apartment has stunning natural light and provides a lovely place to live; pure Surfers Paradise lifestyle.
What we love about this apartment:
- Fantastic views and position
- 2 bedrooms with an ensuite in the primary bedroom
- 1 Secure car parking spot
- Lovely balcony to enjoy at all times of the day
- Efficient floorplan to enhance lifestyle and floorspace
- In the heart of Surfers, seconds away from everything
- Can come fully furnished
- Top-of-the-line building with amenities to match
Advantages of living in the Hilton:
- Downstairs cafe and restaurants
- Extremely large outdoor pool, plunge pool, kids pool with playground
- Indoor pool
- 24/7 Gym
- Sauna
- "Eforea" day spa
Make 12702/3113 "Hilton" Surfers Paradise Blvd, Surfers Paradise your next home or smart investment. Contact Jacob Lanning on 0430 348 401 today to organise an inspection.
Disclaimer: In preparing this information Phillis Real Estate has used its best endeavours to ensure that the information contained herein is true and accurate but accepts no responsibility and disclaims all liability in respect of any errors, omissions, inaccuracies, or mistakes.







